Proyecto de rehabilitación de Ecoaldea
los perales, valladolid
El Proyecto de Rehabilitación "Los Perales" transforma una finca rural en una vibrante Eco-Aldea periurbana, sectorizando la intervención en tres ámbitos, cada uno abordando una escala distinta para crear un espacio sostenible y conectado con su entorno.
. 1. Agro Parque Urbano (Escala Mayor): En una hectárea de terreno, se desarrollará un Agro Parque Urbano, integrando la finca en la expansión de la ciudad. Su cercanía al eje recreativo del Río Pisuerga y a espacios como el parque PRAE y el Jardín Botánico de Arroyo de la Encomienda, convierte este proyecto en un puente entre la naturaleza y la urbanización, ofreciendo un espacio verde donde la comunidad pueda reconectarse con el entorno natural.
2. Eco-Aldea Periurbana (Escala Intermedia): En el área central de la finca, de 1.100 m², se creará una Eco-Aldea periurbana. Este espacio albergará viviendas ecológicas con servicios comunes, diseñados para maximizar la ecoeficiencia y promover un estilo de vida sostenible. La ubicación estratégica, en la periferia de la ciudad, ofrece lo mejor de ambos mundos: la tranquilidad rural y la cercanía a la vida urbana
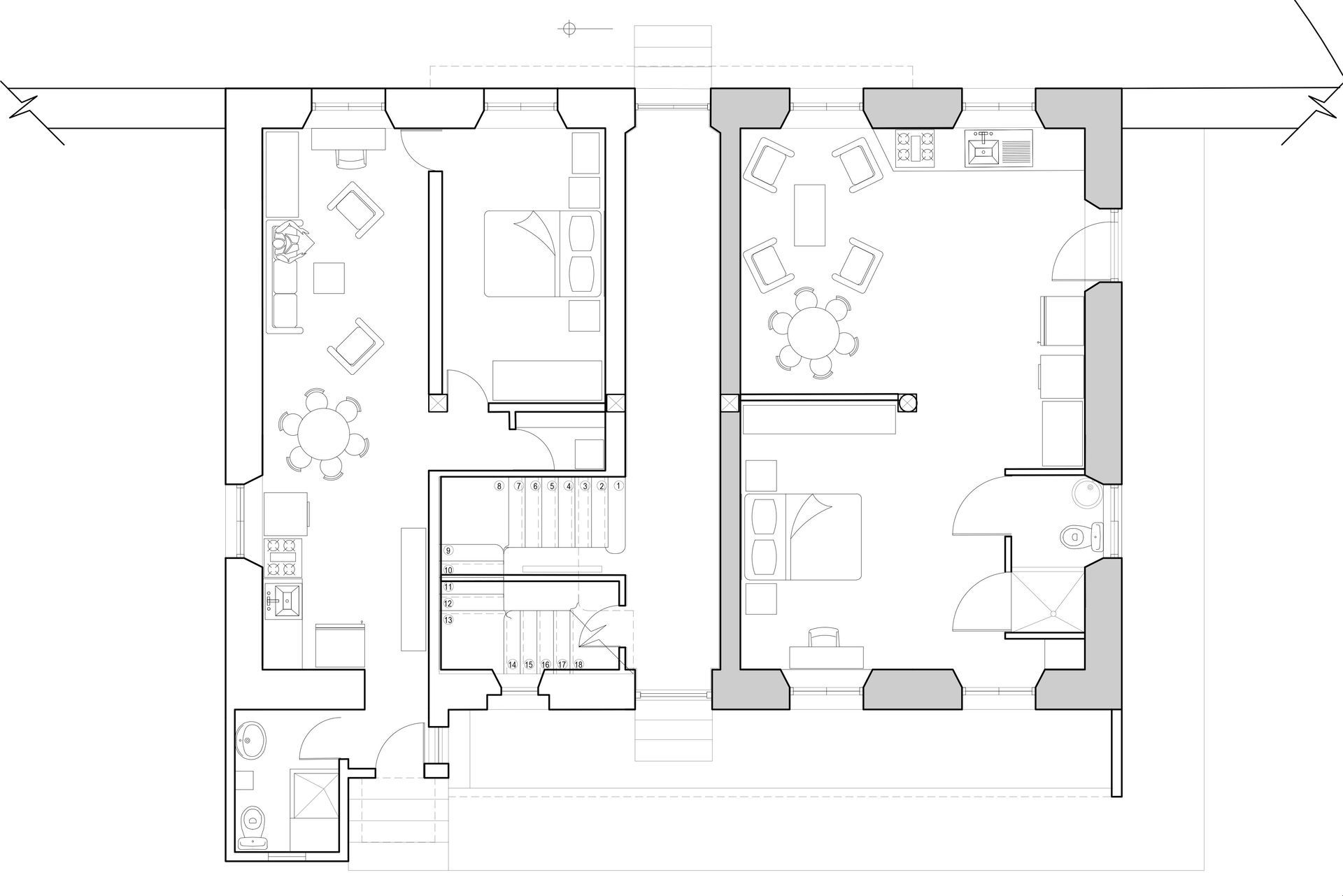
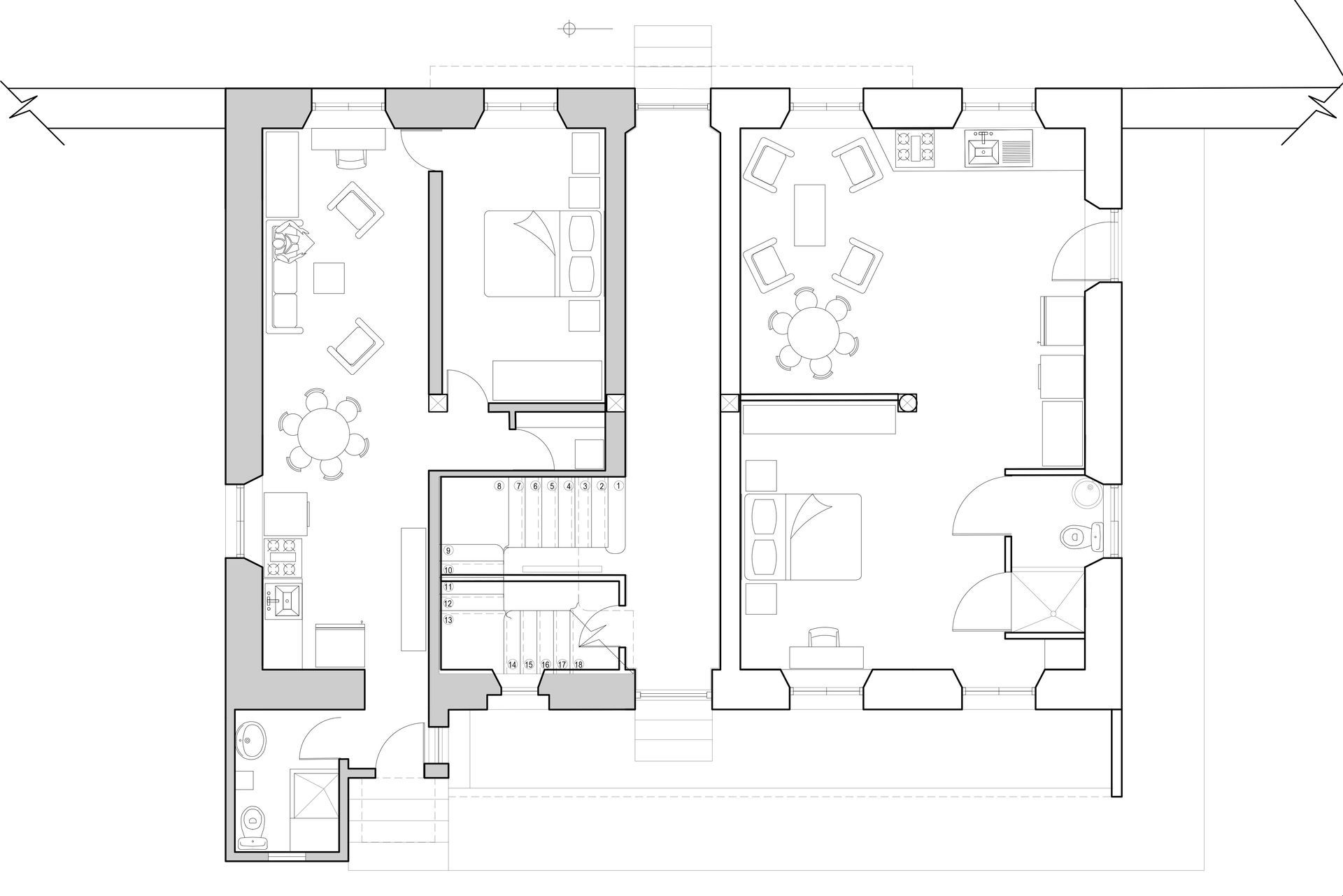
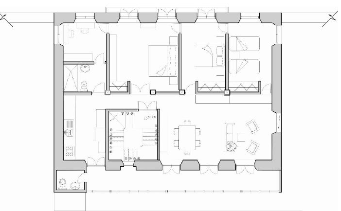
. 3. Reforma y Rehabilitación Arquitectónica (Escala Menor): En la fase final del proyecto, se abordará la reforma arquitectónica de las edificaciones existentes, con un enfoque especial en la histórica Casa Amarilla, un edificio con más de 150 años de historia. La rehabilitación de la Casa Amarilla se centrará en su restauración estructural y en la preservación de su valor patrimonial, destacándola como un testimonio del pasado en el corazón de la nueva eco-aldea.
Este proyecto combina lo mejor de la tradición y la innovación, creando un espacio donde la historia y la modernidad coexisten en armonía con el medio ambiente. "Los Perales" no solo revitaliza un espacio rural, sino que también establece un modelo para el desarrollo sostenible en la periferia urbana.

































